介绍常见的主题施工的类容!

春节期间,上千业主联名举报因山东济南市融汇城玫瑰公馆2期1-4号楼之间车库坍塌,经委托第三方机构检测发现1-6号楼主体也存在相关质量问题。




钢筋混凝土结构建筑中的钢筋就好比人的骨架,其从原材料,加工及安装都有自己的一套规范,可见其重要性。今天我们就来看一看钢筋工程的常见质量通病及防治措施。让我们在日...

本文以施工现场图片来解说后张法施工工序。并详细介绍了相关操作要领及注意事项 一、预留孔道 孔道预留要根据结构受力特点,严格按照设计图纸要求布设孔道。并且孔道要固...

钢筋施工说简单也简单,遇到难题也真挠人。今天小编帮您解决施工中的8个令人头痛的难题,一起看看吧。 方案与实际不一致 如基础底板支架与楼板马凳问题。若定额对支架和...

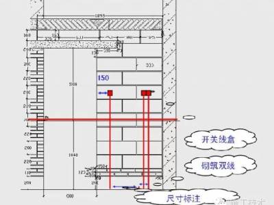
质量管理流程 主体结构质量管理(钢筋混凝土工程、砌筑工程) 钢筋混凝土工程质量现状 1、施工组织设计缺乏指导性,技术措施与质量目标关联性不强。 2、模板工程在尺...
本站公众号

建工计算器
